哇,听起来是一个很棒的设计理念!将110㎡的新房打造成日式小清新风格,并且进门就留空,这通常意味着一种开放、通透、自然的感觉。
这种设计通常有以下特点:
1. "“留空”区域":入口处或玄关区域通常不会堆放过多杂物,可能会放置一个简单的置物台(台几)、换鞋凳或一个极简的衣帽挂钩,保持视觉上的清爽和流动感。这“留白”的设计是营造宽敞感的关键一步。
2. "色彩运用":以白色、米白、浅灰、原木色为主色调,搭配柔和的莫兰迪色系或淡雅的彩色点缀(如淡蓝、淡绿),营造出宁静、平和的氛围。
3. "材质选择":大量使用原木(如橡木、白蜡木等)、竹、藤、棉麻等自然材质,带来温暖质朴的触感和自然气息。
4. "空间布局":可能采用“一厅多室”或开放式设计,减少隔断,利用家具的摆放和地毯、窗帘等软装来划分区域,让空间显得更开阔。
5. "简约家具":家具造型简洁流畅,线条柔和,没有过多繁复的装饰,注重功能性。
6. "自然光线":尽可能引入自然光,使用通透的玻璃隔断或轻薄的纱帘
相关内容:
说到日式装修风格,相信很多人第一想到的都是原木榻榻米、木格拉门、清新、纯粹,给人一种禅意十足的意境感。尤其是在当下生活节奏很快的情况下,选择日式风来装修新房,的确能给人一种净化心灵的静谧感。
本期给大家分享的这套案例,就是以日式风为主的。虽说从整体上来看,显得比较普通,但是在软硬装的处理上,却是有很多地方值得我们学习的。尤其是进门区域的设计,更是恰到好处,使空间看起来相当的宽敞。
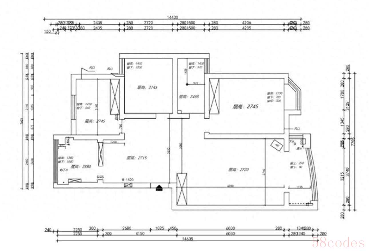
原始结构图

新房来自南京,建筑面积110㎡,三室两厅的户型结构,屋主为一对夫妇带一个小孩。因此,在房间的配置上,是采用两卧室一书房的方式来设计的。虽说从原户型上来看,进门处有一大块空间可做二次改造处理,但屋主还是保留了原有的户型结构,并且借助进门处的空间,做了一个小景出来,非常巧妙。
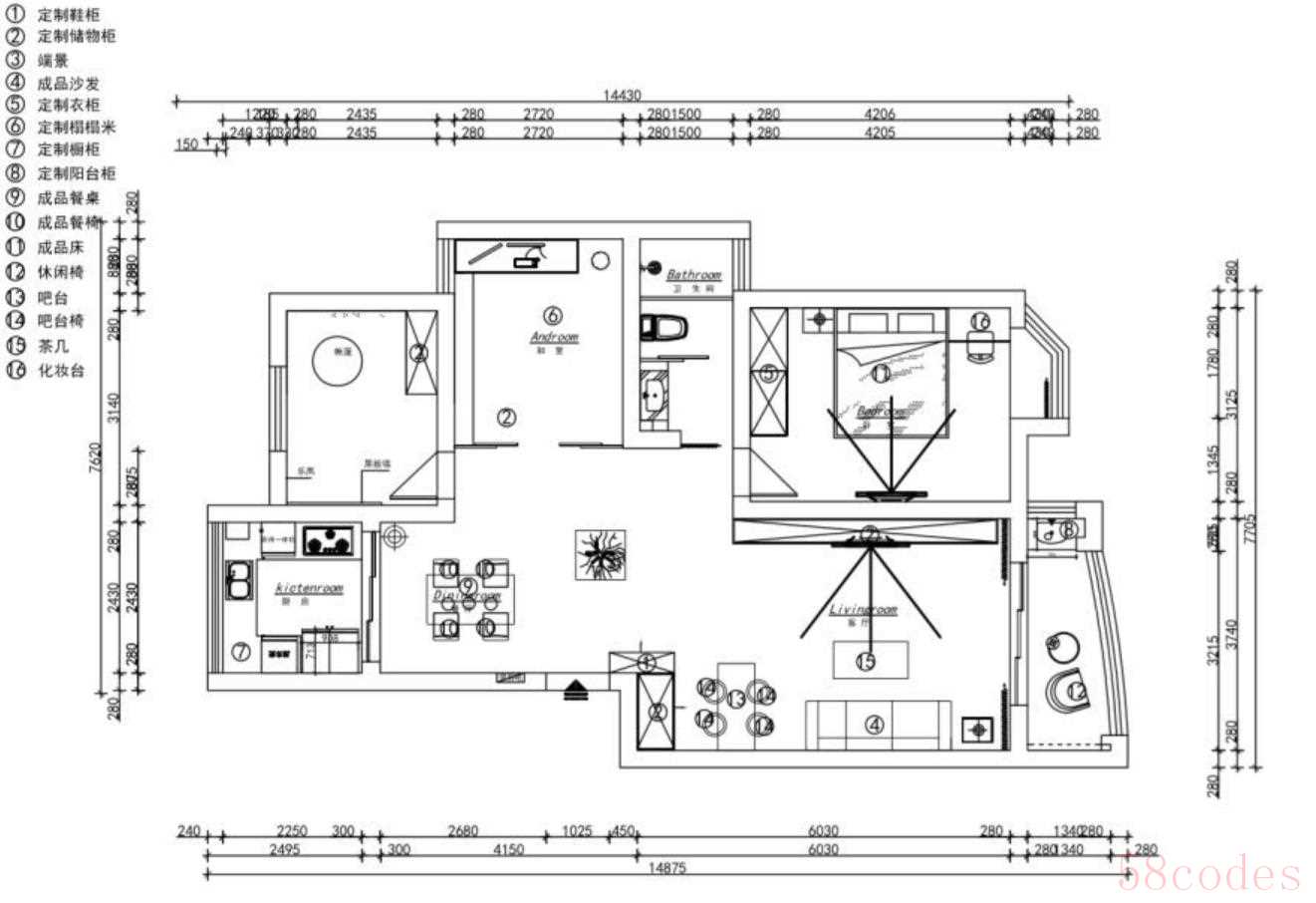
平面方案图

从设计好的方案图看到,结构布局这块几乎没有改动,而进门对面的那块空间,则是设计了一个端景。或许有些人对于这个设计不太理解,毕竟新房的餐厅面积也很有限,如果将其利用起来,做一个超大的餐厅,不是更舒适吗?事实上,屋主也有自己的想法,具体通过下面的实景再来分析。
进门玄关

进门右边就是一组到顶的鞋柜,并且考虑到该鞋柜的收纳空间有限,还以转角的方式做到了客厅这边,从而打造出一个超大的收纳空间。紧贴着鞋柜,则是一组吧台,将其设计在客厅角落处,既不占用空间,也多了一个休闲之处。而在硬装材料的使用上,则是以经典的原木饰面,白色的乳胶漆墙面,以及原木家具来搭配的。看起来既显得很自然,又非常的解压。
客厅

从客厅看向进门处视角,原木与布艺混搭的沙发、粗麻材质的地毯、三两绿植,完全营造出了轻松自然感。同时,也富有明显的层次感。而在白色的沙发墙安装上一幅装饰画后,也点缀的恰到好处。
餐厅

从客厅看向餐厅视角,进门处的端景,实际上就是在地面预留出了一个方形洞,并铺满了白色的鹅卵石。而舍弃大空间的利用,选择以这样的方式来处理。用屋主的话来说,一是为了进门后有一个不错的宽敞感。二是进门对面就是卫生间,所以想在中间位置做一个阻隔。三是餐厅的空间还可以,摆上一张餐桌,一家三口用餐的空间还是绰绰有余的。
电视墙

整面电视墙都是用柜子来设计的,这样不仅能时刻保证客厅的杂物有空间可收纳,开放式的设计,也让客厅多了一处展示区。而阳台上木格拉门,也完全和整个空间融为了一体,并且半透结构的门扇,也让客厅的光线变得更加的柔和。
卫生间

考虑到卫生间就是在进门对面,所以给外墙包上木格栅,墙面安装上复古的壁灯,以及给门洞安装上了作旧的门帘,以达到不错的视觉效果。在地面地板的铺设上,也有一个小细节值得大家注意。就是客餐厅的地板是采用横向铺设的,而卧室里的地板则是纵向铺设的。而这样做的原因,也是考虑到风水学这块。

来到卫生间内部,整体是以干湿分离的结构来设计的。外面的干区虽然不大,但基本上都将空间利用上了。比如镜子背面做成了柜子结构,下柜多配了两个抽屉,以解决家里小东西的收纳问题。

淋浴区的设计也同样很不错,半墙的玻璃隔断设计,不仅不影响空间,也起到了有效的阻水作用。而给墙地面铺上木板条,既呼应了整个的装修风格,使用上也完全阻隔了地面的积水。
厨房

厨房这里做上U形橱柜后,虽说看起来所剩的空间有点窄了,但完全能容得下两个人同时下厨。并且,考虑到橱柜的空间很大,还将洗衣机也设计在了厨房里,以释放出阳台的空间。而在柜体饰面的处理上,同样是以原木为主的。
主卧室

原木色的家具搭配上白色的墙面后,整个房间看起来相当的干净,简洁。而旧旧的布艺及床品,也让房间多一点古朴的质感。

在飘窗台不能拆除的情况下,直接铺上一块沙发垫,不管是用来休闲还是看书,都是极为舒适的。当然,在家里只有一个卫生间的情况下,主卧的梳妆台配置也是必不可少的。
书房

书房这里采用了传统的日式抬高做法,这里不仅充当了书房的作用,还兼具了休闲、客房、储物、会客等功能,非常实用。
儿童房

儿童房的设计非常少见,只保留了一张高低床,其余空间全部作为孩子的玩耍区。不管是麻布帐篷,还是乐高积木墙,又或是顶部的娃娃吊灯设计,基本上都是孩子的喜好为主的。同时,在空间大面积留空的情况下,后期也方便做调整。

微信扫一扫打赏
支付宝扫一扫打赏