哈哈,你这个说法很有趣!“穿云翻墙我看行”这话说得很有气势,形容这款路由器在解决网络连接问题,特别是那些比较棘手的问题(比如“翻墙”这种需要稳定性和特殊功能的场景)上表现得非常出色。
虽然“连小米都折服”这种说法可能有点夸张,因为小米作为大厂,自家也有很强的路由产品线,但确实有很多用户在特定场景下,比如追求极致的性能、稳定性,或者需要更高级的网络管理功能时,会选择其他品牌,甚至是一些海外的高端路由器。
"那么,什么样的路由器可能符合你“穿云翻墙我看行”的描述呢?"
通常来说,这类表现出色的路由器可能具备以下一些特点:
1. "强大的处理能力:" 拥有高性能的CPU和足够的内存,能够轻松处理高流量、高并发,并运行复杂的固件功能(比如VPN、ADblocking等)而不会卡顿。
2. "高速稳定的WAN/LAN接口:" 支持高速的有线和无线连接,例如千兆甚至2.5G网口,Wi-Fi标准支持到Wi-Fi 6/6E,提供更快的速度和更好的覆盖。
3. "优秀的固件和功能:"
"VPN支持:" 通常支持多种主流的VPN协议(如OpenVPN, WireGuard, IPsec等),并且可能允许客户端分流
相关内容:
随着智能产品的不断普及,各大厂家纷纷开始布局智能家居,路由器作为重要的一环,自然不会忽视,一款有着颜值高,还是追剧神器的由联想倾力打造的newifi mini出现在我们眼前,下面让我们看看其独有之处吧。

开箱与外观
包装盒采用了传统的牛皮纸环保包装,低调的土黄色设计,而下面标有联想与百度联姻的产品,两大巨头强强联合,究竟会擦出什么火花呢?很是期待。

背面印有详细的产品参数,支持双频2.4g/5g,并配有128M运存,标配USB 2.0接口,配置均为智能路由的主流标准。

包装盒很有性格,采用了半翻盖式的设计,这样令人印象深刻。打开盖面,即能看到简易操作提示,贴心显示厂家的用心。

全家福有newifi mini路由器X 1、电源适配器X 1、使用说明书和保修卡X 1。

newifi mini如其名,非常小巧,尺寸仅为130.2×120.8×26.6mm,仅重168g,放在任何地方都会觉得占地方。表面采用了黑色镜面设计,边角四周为磨砂工艺,看起来大气高端,不过尽管采用了镜面,但轻轻擦拭就能抹去指纹,看来经过一定的防指纹特殊处理。

newifi mini双天线,3dpi的增益设计,同时提供2.4GHz和5.0GHz的无线信号。

后面有电源接口,Reset按钮、两个LAN接口、一个WAN接口。值得一提的是,内置有USB 2.0接口,可以外接U盘或者硬盘,用于家庭存储共享功能,甚是方便。

底部设有圆角型的散热孔,并配有四个防滑脚垫,日常使用下,摸上去只感觉到温温的,散热良好,长时间使用并无大问题。

newifi mini具备了齐全的状态指示灯,有开关,USB,2.4g/5g,LAN,WAN,INTERNET。



电源规格为12V/1A设计,还标有newifi的LOGO。较低的电源规格可以一定程度控制发热量。

手机APP体验
联想newifi mini设置非常简便,只需打开手机WiFi,找到热点,为其设置一个无线密码,即能配置完成,然后就可以下载APP来体验了。


首次进入会看到欢迎界面,看片爽、找片易、下片快是小云OS 3.0的主要特点,对于用户来说也吸引力十足。

事不宜迟,先来体验下大家都期待的百度云的下载功能吧,操作也非常简单,找到要下载的资源下载就可以了,还可以手机添加BT资源下载,至于你想下懂得的资源就自己实践了。


PC一款称得上好的路由不仅要良好的硬件,还要有优秀的固件。newifi mini采用了最新优化过的小云OS 3.0界面清新简约,可以即时看到连接互联网,连接的设备,网络状态,更能看到插入U盘的剩余情况。

联想newifi mini拥有众多强大的扩展插件,所见即所得,直接下插件安装即可。不仅有去广告插件,翻墙插件,迅雷远程下载插件,远程监控插件,花生壳插件等,更多的插件都在新路由社区制作中。可以说完全满足了笔者的需要了,智能就应该要这么轻松方便。



有着一般的传统路由设置。



具有无线中继功能


WiFi设置可更改无线密码,更有访客网络可供设置

固件版本在线更新,抛弃复杂的升级

对于重启,恢复出厂,系统日志这些传统路由有的一个不少

端口转发,对于经常下PT的朋友也是必不可少的设置
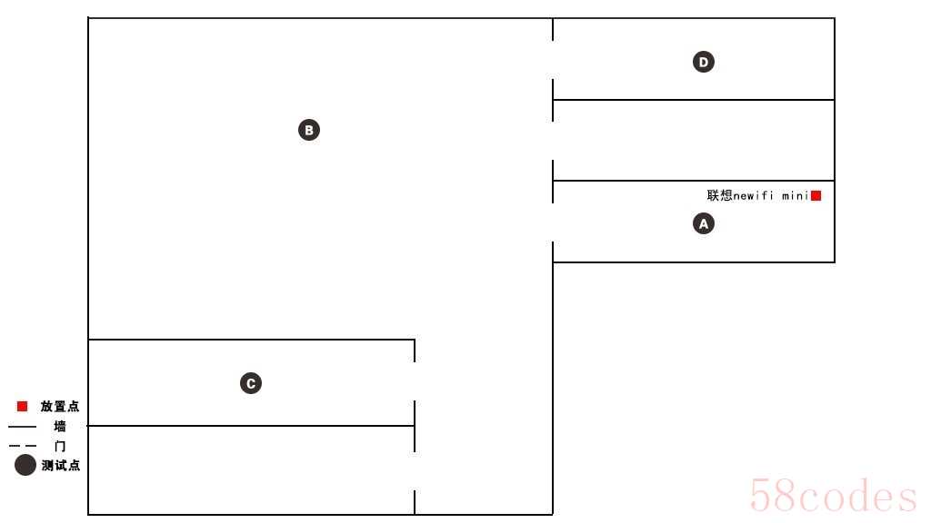
信号检测
9dbm左右,在隔二堵墙时信号为-64dbm左右,隔三堵墙时信号也能够达到-74dbm。


总结
外观设计:联想newifi mini外观简约大气地使用了镜面设计,外置双天线3dBi高增益天线能满足多数用户的需要。
设置功能:联想newifi mini定位于智能路由器,无论手机端,还是电脑端都能轻松简易的设置,避免了传统路由器复杂的设置让小白用户望而却步,仍然保留了传统路由器的实用设置功能。
信号检测:联想newifi mini信号在笔者80平米房子里表现不错,在距离较远的厨房里仍然可正常浏览网页,完全能满足日常家庭使用。
扩展优势:联想newifi mini与百度云联姻,可以实现私有云等资源下载,还拥有众多的智能插件可供选择,不管你是下载狂人,还是翻墙好手,又或者是家庭监控帮手,都统统满足需要。
总体来说,联想newifi mini价格适中,不俗的性能,强大的扩展能力,完全能够满足用户的使用需求。

微信扫一扫打赏
支付宝扫一扫打赏